nasz dworek

Dworek – koncepcja 2 i 3, czyli już prawie :)

Od ostatniego wpisu na ten temat zdążyliśmy już dostać i przeanalizować dwie nowe koncepcje:)
To co widzicie powyżej to taras i wyjście na ogród z tyłu 😀 Tak, tak, chcieliśmy taras, mamy taras 😉 Na wykuszu też prawdopodobnie będzie mały balkon, na który będę mogła wychodzić sobie ze swojego gabineciko-grajdołka (albo inaczej szumnie nazywanej 'pracowni’;)

Front nie zmienił się za bardzo, oprócz przestawienia ryzalitu na prawą stronę i przesunięcia go do tyłu (lepiej wyglądał z przodu, ale niestety nijak nie pasuje w tym miejscu do układu wnętrz o jaki nam chodzi).
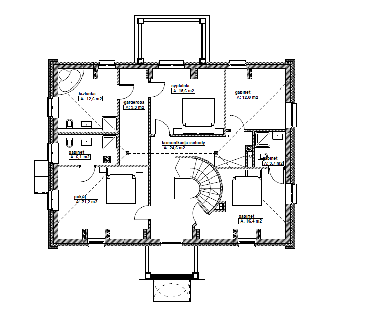
W zasadzie z zewnątrz jest już dokładnie tak jak chcemy, teraz kombinujemy tylko z wnętrzem, które próbujemy sensownie dopasować do 'zewnętrza’ 😉 Od architekta dostaliśmy dwa pomysły na układ pomieszczeń, WARIANT 2:
W tym układzie parteru nie podoba mi się ilość drzwi. O ile na początku sama sobie wymyśliłam, że kotłownia i łazienka będą w głównym holu, to teraz stwierdzam, że jednak lepiej będzie dać je gdzieś z tyłu domu za małym korytarzykiem 🙂 Zawsze mi się takie 'zakamarki’ w starych domach podobały ;P No i nadal marzą mi się drzwi do gabinetu pod schodami, więc tutaj schody też nie w tym miejscu.
Na piętrze jest w zasadzie tak jak sama na początku sobie rozrysowałam i taki układ mi pasuje 🙂
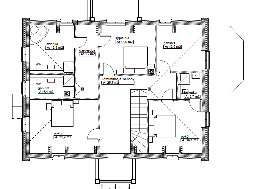
WARIANT 3:
Nasz architekt, jak sam powiedział, nie może znieść myśli o braku światła wchodzącego do salonu, więc pomyślał, że salon ustawi w wykuszu. Byłoby to nawet ok, gdyby nie fakt, że na nasz piękny, duży taras trzeba by wychodzić z jadalni, a to mało praktyczne. Ilość drzwi w holu znowu spora, ale przynajmniej gabinet jest przy schodach 😛
A! jeśli przeraziliście się właśnie, że rzeczywiście z tyłu takie ciemności będą panować bo to północ, to śpieszę wyjaśnić, że kierunki świata na szczęście nie wypadają tu dokładnie tak jak architekt zaznaczył (wg. niego – wschód to prawa strona domu, a południa od frontu).
Byliśmy na działce o różnych porach dnia i, w stosunku do domu, wygląda to mniej więcej tak:
Więc tak, salon nie będzie w bezpośrednim słońcu, ale będzie miał światło z zachodu, a dzięki dużym oknom nie martwimy się aż tak o efekt jaskini 😉 (i mam nadzieję, że mam rację!:P)
Z resztą to samo wysłałam architektowi, żeby go trochę uspokoić 😛
Jak widać, w tym wariancie góra niewiele się różni od tej z wariantu nr.2 i nie mamy zastrzeżeń.
I co teraz? Na dzień dzisiejszy wymyśliłam, że bierzemy wariant nr.2 i jeszcze trochę go zmieniamy:
Gabinet przestawiamy do przodu (a w nim tylko 1 okno, te od frontu, żeby w środku mieć biblioteczkę na całą ścianę), drzwi do niego prowadziłyby pod schodami, które też przerzucamy na lewo. Za schodami byłby korytarz prowadzący do łazienki i kotłowni, co wg. architekta ma sens ze względu na pion kanalizacyjny z łazienki na górze. I w ten oto sposób wszystko powinno być już dokładnie tak jak chcemy 😀
Pozdrawiam!:)

7 komentarzy

  • Emilia B

    Pięknie się szykuje 🙂
    A co do wyjścia na taras z jadalni, to tak sobie pomyślałam, że przy ładnej pogodzie będzie można szybko przenieść obiad na zewnątrz 😉 Oczywiście trochę żartuję 🙂
    My mamy sypialnie od zachodu, mała jest, ale nie sprawia wrażenia ciemnicy 🙂
    Wykusz mi się bardzo podoba. Na urlopie mieliśmy raz jadalnię w wykuszu, fajne to było 🙂
    pozdrawiam

    • speckledfawn

      jeśli sugerujesz, drogi anonimie, że chcemy zbudować coś na styl tych nowoczesnych niby-zameczków z wieżyczkami i innymi pierdółkami, to uświadomię, że nie, nie zamierzamy. To będzie dom ze smakiem inspirowany i utrzymany w stylu tradycyjnego polskiego dworku. Następnym razem zapraszam do podpisania się.

  • Anonimowy

    To co Pani tworzy to nic innego niż niby tradycyjny dworek, niczym nie różniący się od niby-zameczków do których podchodzi Pani z taką pogardą. Do lektury zapraszam, jednocześnie zapraszam do lektury książek związanych z architekturą tradycyjną dworków polskich. To co zaproponował Państwu "architekt" jest poniżej jakiejkolwiek krytyki. Jest tandetne i kiczowate. Jest kwintesencją stylu buraczanego,czyli wyjątkowo tragicznego w skutkach połączenia braku edukacji historycznej, estetycznej oraz zachcianek klienta który chce mieć dwór szlachecki w cenie domku z katalogu.

    • speckledfawn

      nie będę wchodzić w niepotrzebną dyskusję bo to nie ma sensu, ale wyjaśnię: to co tworzy dla nas architekt to odwzorowanie dworku z 1932r i jedyne co różnić się będzie od oryginału to wnętrze, w którym rozmieszczenie pomieszczeń ustawiamy pod siebie, więc cóż… może tamten dworek też był 'buraczany', nie wiem 😛
      Natomiast co do książek, tak się składa, że mam bogatą kolekcję pozycji na temat dworków polskich i dobrze się w tej kwestii orientuję, dziękuję za radę 😀 A i jeszcze takie małe nota bene – oprócz angielskiego uczę plastyki i historii sztuki. Pozdrawiam i życzę mniej jadu na przyszłość 🙂

    • Home Things

      Hehe ale pojechałaś, tak trzymać ;)A jeśli idzie o projekt, to kuchnia na wschodzie jest świetnym pomysłem- letnim wczesnym porankiem, podczas szykowania śniadania do pracy, fajnie słońce zagląda i od razu przyjemniej się robi 🙂

    • speckledfawn

      No co zrobić 😛
      Ta kuchnia od wschodu też mi właśnie z tego powodu odpowiada – z okien będzie widok na piękne łąki więc tak z rana będzie istny cud-widoczek 😀

Dodaj komentarz

Twój adres e-mail nie zostanie opublikowany. Wymagane pola są oznaczone *

Speckled Fawn DIY, blog o dekorowaniu wnętrz, ogrodach i rękodziele. Pomysły na DIY, zrób to sam, filcowanie.
Przegląd prywatności

Ta strona korzysta z ciasteczek, aby zapewnić Ci najlepszą możliwą obsługę. Informacje o ciasteczkach są przechowywane w przeglądarce i wykonują funkcje takie jak rozpoznawanie Cię po powrocie na naszą stronę internetową i pomaganie naszemu zespołowi w zrozumieniu, które sekcje witryny są dla Ciebie najbardziej interesujące i przydatne.