fbpx
nasz dworek

Ostateczny projekt naszego dworku! :)

 

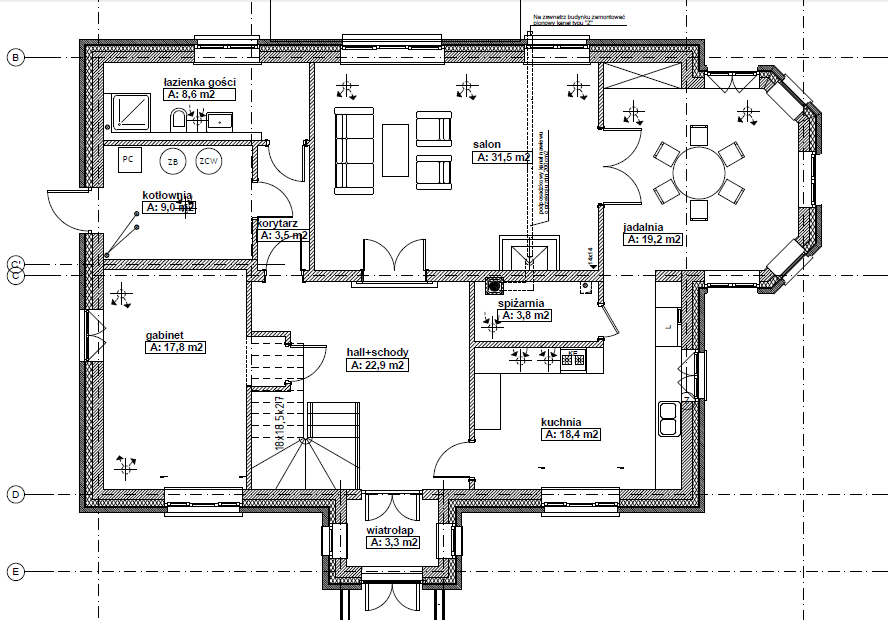
Jest! 😀 Dostaliśmy już taką ostateczną koncepcję naszego wymarzonego dworku 🙂 Teraz czekamy tylko na dostarczenie całości w wersji papierowej razem z całą tą techniczną stroną, ale to jak dom będzie wyglądał możecie już zobaczyć :))) Udało się stworzyć projekt wyglądający właściwie identycznie jak pierwowzór, jedyne z czym musieliśmy się dostosować to wysokość całego budynku – idealnie byłoby gdyby miał jakieś 9,5m, my wg. WZ zmieściliśmy się w 9.
Jedyne co jeszcze zmienimy to wysokość barierek – powinny mieć 1,10m (tak jak na projekcie poniżej), ale nie wygląda to dobrze, więc architekt wymyślił, że tę betonową część 'klasyczną’ obniżymy o 10 cm, a nad nią wykonamy stalowy pochwyt cofnięty jak
najbardziej w głąb, tak żeby jak najmniej było go widać z zewnątrz (drugie zdjęcie poniżej).
Wygląda mi to o wiele lepiej, a że i tak chciałabym żeby na tych barierkach latem było mnóstwo kwiatów, to tej metalowej części nie będzie widać z dołu pewnie wcale 🙂
Myślimy jeszcze tylko czy ten taras z tyłu nie powinien być trochę większy – według obecnego projektu ma 6x3m (ktoś już się śmiał, że na takim stylowym tarasie to ja będę warkoczem zarzucać i wianki do stawu wrzucać:P trzeba chyba zapuszczać warkocza;P).
Jeśli chodzi o środek, to niewiele zmienia się w porównaniu z poprzednią wersją – jest korytarz do kotłowni i łazienki na dole i małe przesunięcie ściany gabinetu.

 

 

 

Jestem bardzo ciekawa Waszych opinii :))

Pozdrawiam!

 

47 komentarzy

Dodaj komentarz

Twój adres e-mail nie zostanie opublikowany. Wymagane pola są oznaczone *